2 Maple St.
Step Inside
Property Highlights
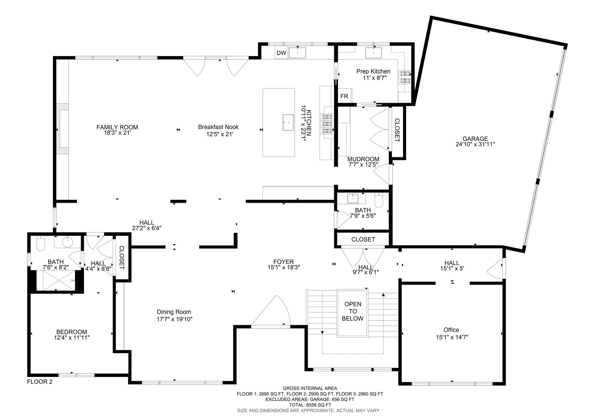
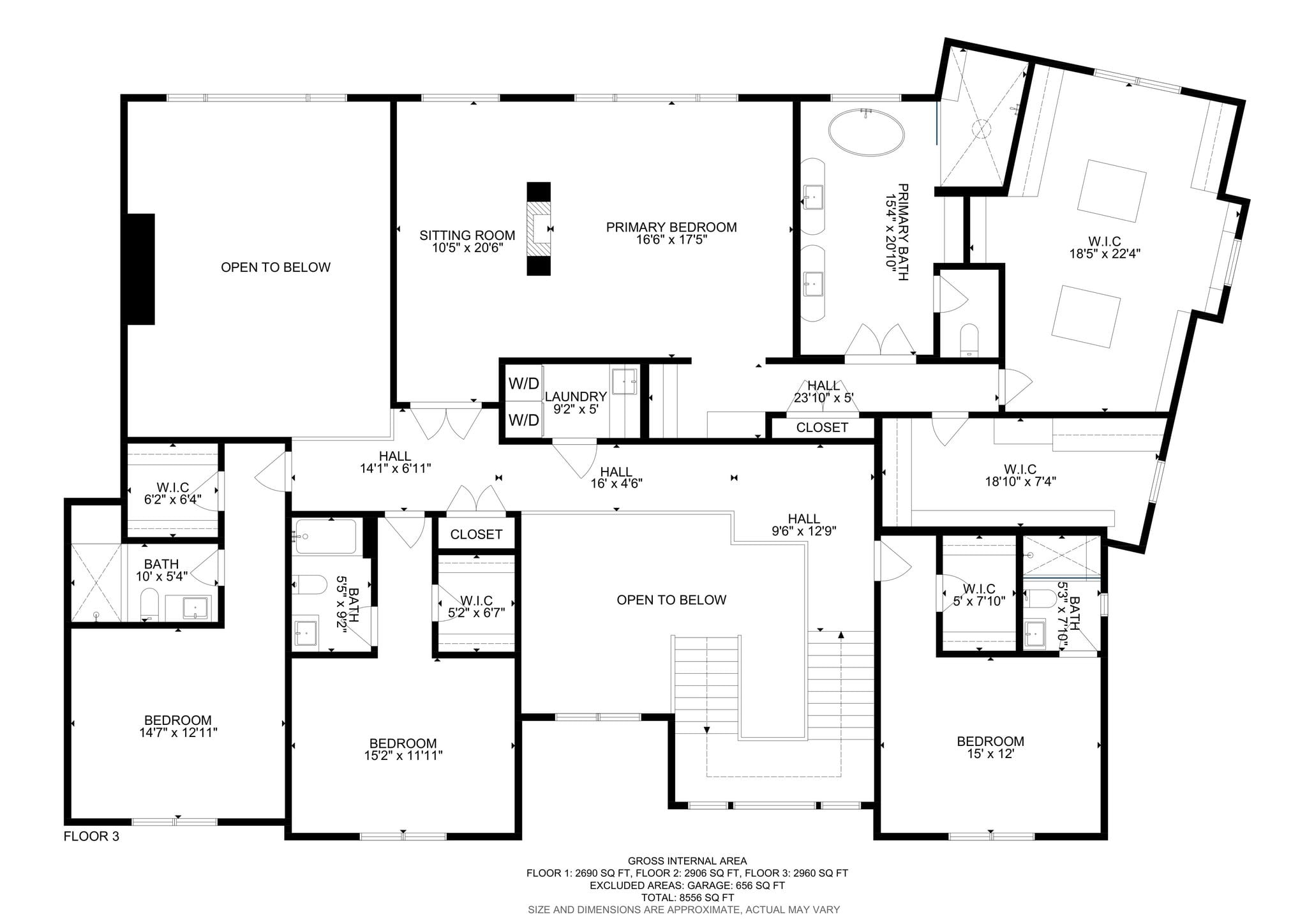
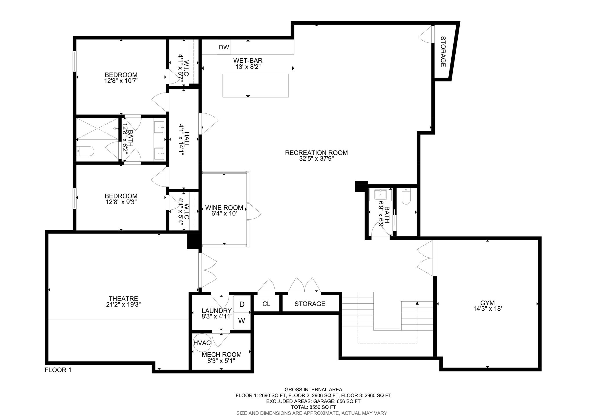
Set on a quiet dead-end street in the prestigious North Cliffs section of Englewood Cliffs, this newly constructed French modern estate delivers over 9,200 square feet of thoughtfully designed living space, blending architectural elegance with advanced comfort and functionality. Featuring 7 bedrooms, 6 full bathrooms, and 2 half baths, the home is defined by its expansive open layout, soaring 10-foot ceilings on the main level, 9-foot ceilings on the second floor and basement, and an abundance of natural light through oversized European windows.
The main level is designed for both everyday living and large-scale entertaining, offering a formal living room, dining room, and a private guest suite with a full bath. At the center of the home is a striking open-concept chef’s kitchen equipped with Sub-Zero and Wolf appliances, custom Italian cabinetry, and a separate prep kitchen for added convenience. The dramatic two-story great room creates a true focal point, while a well-appointed mudroom provides practical everyday functionality.
Upstairs, four spacious bedrooms each feature their own en-suite bathrooms, including a refined primary suite complete with a private sitting room and fireplace, dual custom walk-in closets, and a spa-inspired bath. A conveniently located laundry room completes this level.
The fully finished lower level is designed as a complete lifestyle retreat, offering a home gym, private theater, wet bar, recreation room, wine room, two additional guest bedrooms, a full bathroom, half bath, and a secondary laundry room.
Outdoor living is equally impressive, featuring a beautifully designed in-ground gunite pool with spa, ideal for both relaxation and entertaining. Additional highlights include radiant heated floors throughout, a radiant-heated three-car garage, and integrated smart home functionality.
This exceptional Englewood Cliffs new construction offers a rare combination of scale, design, and modern luxury in one of Bergen County’s most desirable locations.
Take a tour
Experience the Space
See your potential home from every angle. Take a closer look at the design, layout, and features that make this property special.
Welcome to
The Charming Englewood Cliffs
Englewood Cliffs is one of Bergen County’s most exclusive luxury communities, renowned for its grand estates, low taxes, and unbeatable proximity to Manhattan. Perched atop the Palisades with sweeping Hudson River and skyline views, this prestigious enclave offers privacy, sophistication, and world-class architecture just minutes from the George Washington Bridge. Home to custom-built mansions, modern new constructions, and gated properties, Englewood Cliffs real estate represents the pinnacle of New Jersey luxury living. With top-rated schools, corporate headquarters, and scenic parks nearby, it’s a premier destination for discerning buyers seeking elegance and convenience on the Gold Coast.
Confirm your time
Fill in your details and we will contact you to confirm a time.
Contact Form
Welcome to our open house!
We encourage you to take a few seconds to fill out your information so we can send you exclusive updates for this listing!





































































