400 41st St.
Take a tour
Step Inside
Property Highlights
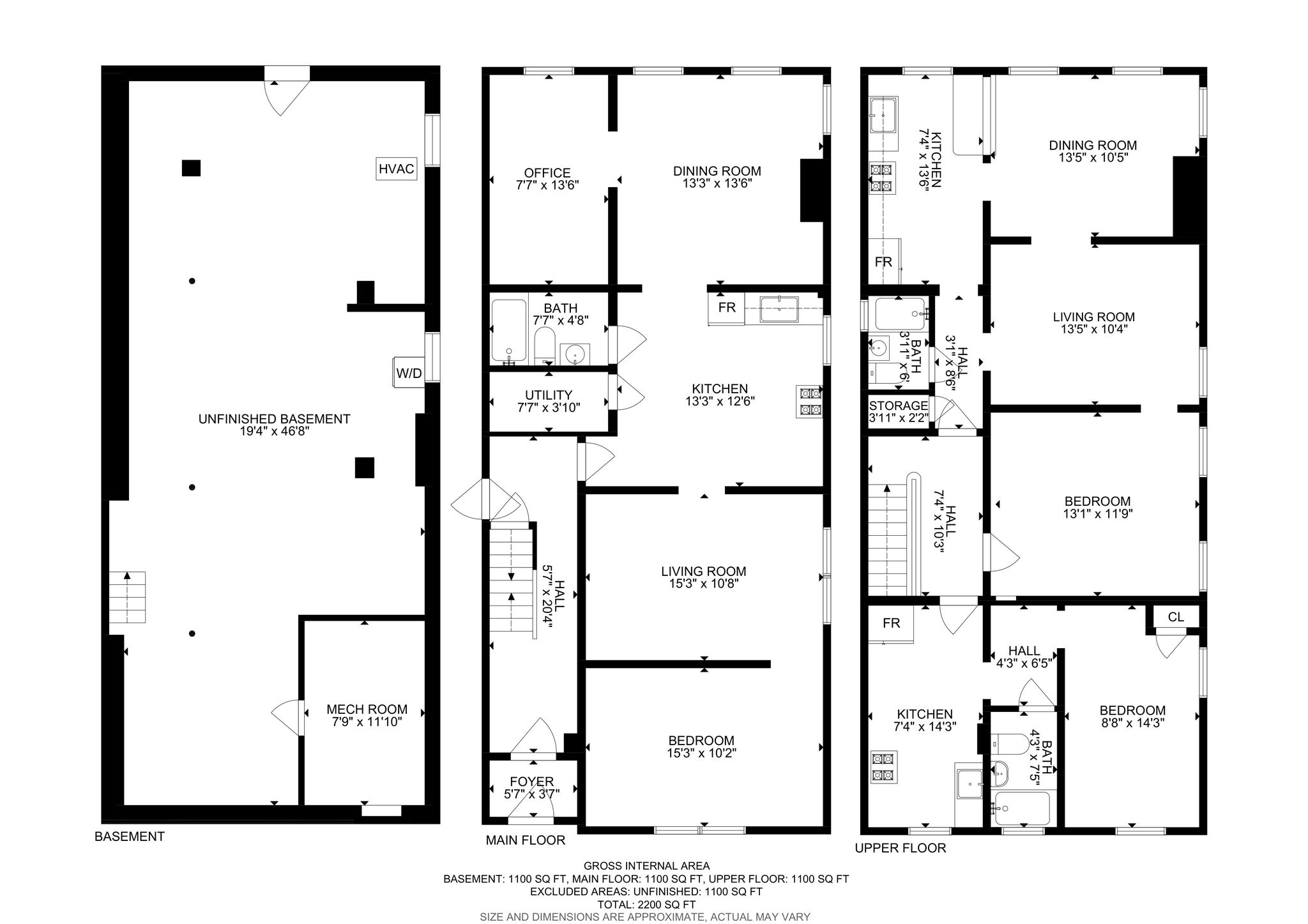
Beautiful corner-lot two-family home in the heart of Union City! Situated on a 25’ x 100’ lot with a detached 1-car garage, this vacant property offers incredible potential for investors or end-users. The first-floor unit features a spacious 1-bedroom, 1-bath layout with great natural light. The second-floor duplex offers 2 bedrooms and 2 full bathrooms, providing flexible living space or strong rental income potential. A full, unfinished basement adds ample storage and future expansion possibilities. Separate utilities make management easy and efficient. |
Take a tour
Experience the Space
See your potential home from every angle. Take a closer look at the design, layout, and features that make this property special.
Welcome to
Union City
Ideally situated atop the Palisades with panoramic Manhattan skyline views, Union City offers the perfect mix of urban energy and suburban comfort along New Jersey’s Gold Coast. Known for its unbeatable location just minutes from Midtown, this vibrant community features luxury condominiums, modern townhomes, and charming pre-war residences at exceptional value. Residents enjoy beautiful parks, cultural diversity, and easy access to dining, shopping, and major transportation to NYC. With its growing appeal and proximity to the Hudson waterfront, Union City stands out as one of the most desirable destinations for buyers seeking modern living and real estate opportunities near New York City.
Click below to
Confirm your time
Fill in your details and we will contact you to confirm a time.
Contact Form
Welcome to our open house!
We encourage you to take a few seconds to fill out your information so we can send you exclusive updates for this listing!



















































