71 Park St. #1B
Step Inside
Property Highlights
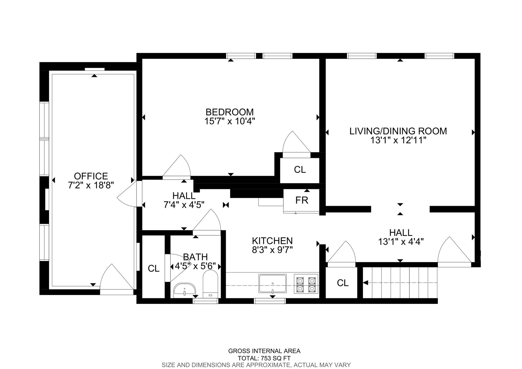
This 753 sq. ft. commercial office space offers a versatile and professional layout with a private entrance, three separate offices, one bathroom, and a convenient kitchenette. The space is equipped with central air conditioning, providing year-round comfort for a variety of business uses.
Ideally situated just off Main Street in Ridgefield Park, this location is close to shopping, dining, parks, public transportation, Overpeck County Park, and the Ridgefield Park Nature Preserve. Commuters will appreciate easy access to the George Washington Bridge, Lincoln Tunnel, Route 46, Route 80, and the New Jersey Turnpike.
Tenant is responsible for utilities. Water, landscaping, snow removal, and one driveway parking space are included in the rent. A two-car garage is available for an additional $350 per month, offering added convenience and storage.
An excellent opportunity for businesses seeking a well-located, efficiently designed office space in Bergen County.
Take a tour
Experience the Space
See your potential home from every angle. Take a closer look at the design, layout, and features that make this property special.
Welcome to
The Charming Ridgefield Park
Ridgefield Park is a charming Bergen County community offering a perfect mix of small-town charm and city convenience. Known for its tree-lined streets, historic homes, and strong sense of community, Ridgefield Park provides an ideal suburban lifestyle just minutes from Manhattan. With top-rated schools, beautiful parks, and easy access to major highways and public transit, Ridgefield Park real estate appeals to buyers seeking comfort, affordability, and convenience in Northern New Jersey.
Click here to
Learn More About Ridgefield Park

Contact Us
Request Information
Reach out if you have any questions and we’ll get back to you quickly.
Explore
Similar Listings
Confirm your time
Fill in your details and we will contact you to confirm a time.
Contact Form
Welcome to our open house!
We encourage you to take a few seconds to fill out your information so we can send you exclusive updates for this listing!




























