48 Algonquin Ave.
Step Inside
Property Highlights
Take a tour
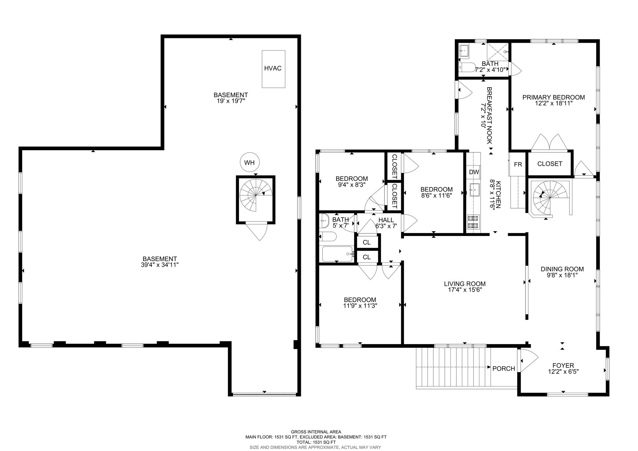
Experience the Space
See your potential home from every angle. Take a closer look at the design, layout, and features that make this property special.
Welcome to
The Charming Rockaway
Rockaway offers a desirable Morris County lifestyle with a perfect balance of suburban comfort, natural beauty, and commuter convenience. Known for its excellent schools, scenic parks, and proximity to major highways and NJ Transit, Rockaway features a wide range of homes from charming neighborhoods to spacious properties near lakes and trails. With shopping, dining, and outdoor recreation close by, Rockaway real estate appeals to buyers seeking quality living, accessibility, and long-term value in Northern New Jersey.

Contact Us
Request Information
Reach out if you have any questions and we’ll get back to you quickly.
Explore
Our Listings
Confirm your time
Fill in your details and we will contact you to confirm a time.
Contact Form
Welcome to our open house!
We encourage you to take a few seconds to fill out your information so we can send you exclusive updates for this listing!





















































