Step Inside
MAGNIFICENT CRAFTSMANSHIP WITH A SUPER SLEEK ARTICULATE DESIGN. BUILT BY ONE OF THE PREMIERE BUILDERS IN ENGLEWOOD CLIFFS. THIS MOVE IN READY 7 BEDROOM 7.5 BATH CENTER HALL IS LUXURY AT ITS FINEST. IMMEDIATELY UPON ENTERING YOU WILL NOTICE THE TRANQUILITY OF SILENCE.
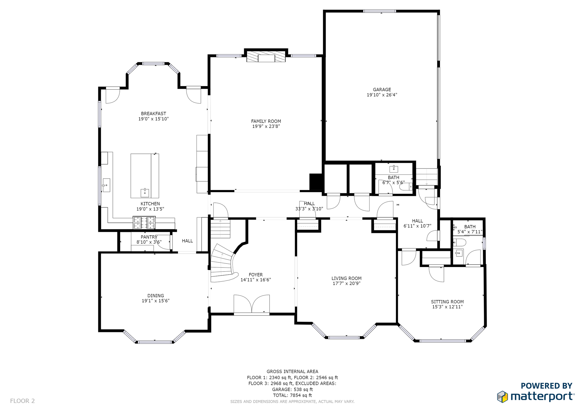
FIRST FLOOR IS WARM AND WELCOMING WITH HAND CRAFTED INLAID CEILINGS THROUGHOUT. ALL WHITE ALNO KITCHEN TOP OF THE LINE VIKING APPLIANCES AND WALK IN PANTRY. ENSUITE BEDROOM WITH MASSIVE CLOSET SPACE AND ACCESS TO 3 CAR GARAGE.
SECOND FLOOR CONTAINS MASTER BEDROOM SUITE, 4 ENSUITE BEDROOMS AND LAUNDRY ROOM.
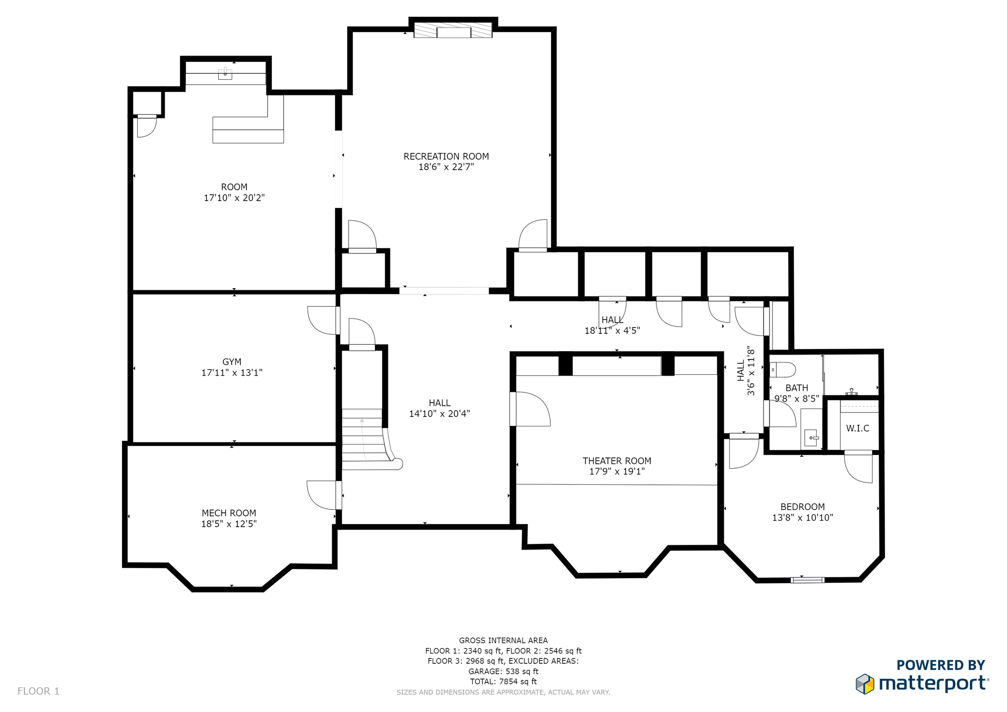
THE LOWER LEVEL FEATURES A GYM, GREAT ROOM WITH FIREPLACE, HOME THEATRE, AND WETBAR. ELEVATOR ON ALL THREE FLOORS AND GENERATOR. BACKYARD EXCELLENT SIZE FOR THE NEIGHBORHOOD WITH ROOM FOR A POOL. LOWER TAXES FOR A HOME OF THIS CLASS. LOCATED 5 MILES FROM THE GWB AND WITHIN WALKING DISTANCE TO HOUSE OF WORSHIP. PRIME NORTH CLIFFS LOCATION!

Take a tour
See your potential home from every angle. Take a closer look at the design, layout, and features that make this property special.
Welcome to Englewood Cliffs
Click below to

Contact Us
Reach out if you have any questions and we’ll get back to you quickly.
Explore
Fill in your details and we will contact you to confirm a time.
We encourage you to take a few seconds to fill out your information so we can send you exclusive updates for this listing!
Share My QR |
|